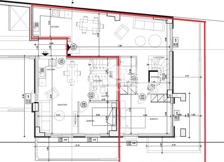
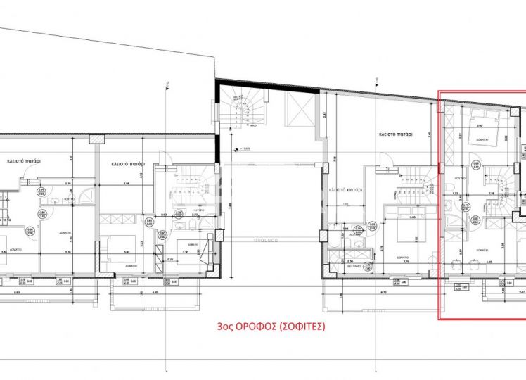
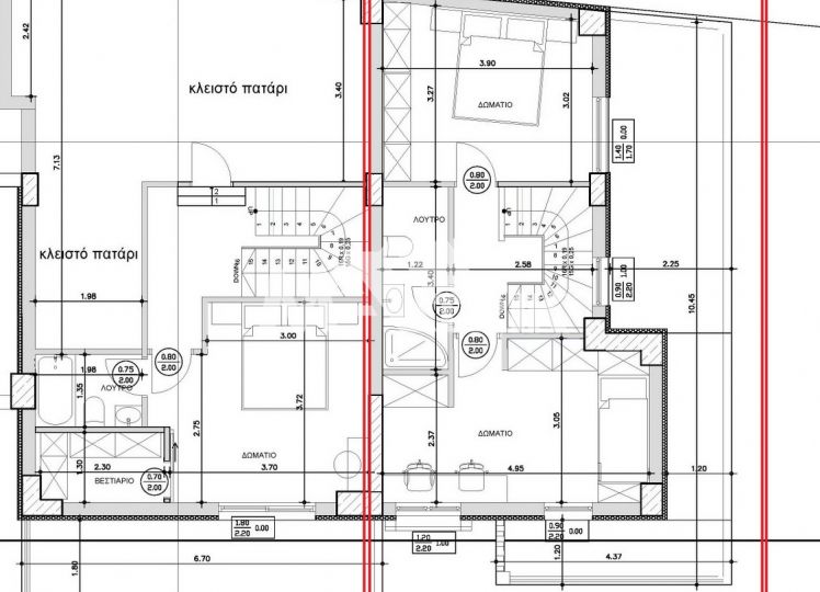
ΠΥΛΑΙΑ, ΥΠΟ ΚΑΤΑΣΚΕΥΗ ΜΕΖΟΝΕΤΑ 115τμ (96τμ ΚΑΘΑΡΑ), 2ου ΚΑΙ 3ου ΟΡΟΦΟΥ ΡΕΤΙΡΕ (Ο 3ος ΕΙΝΑΙ ΣΟΦΙΤΑ), 3Δ(ΣΚ)2ΜΠ, ΜΕ ΜΙΑ ΑΝΟΙΧΤΗ ΘΕΣΗ ΣΤΑΘΜΕΥΣΗΣ.
Η ΜΕΖΟΝΕΤΑ ΑΠΟΤΕΛΕΙΤΑΙ ΑΠΟ ΜΙΑ ΕΝΙΑΙΑ ΣΑΛΟΚΟΥΖΙΝΑ, ΤΡΙ ΥΠΝΟΔΩΜΑΤΙΑ, ΔΥΟ ΜΠΑΝΙΑ (ΕΝΑ ΜΕ ΜΠΑΝΙΕΡΑ ΚΑΙ ΕΝΑ ΜΕ ΝΤΟΥΖΙΕΡΑ) ΚΑΙ ΜΙΑ ΑΠΟΘΗΚΗ ΣΤΟ ΥΠΟΓΕΙΟ ΤΗΣ ΟΙΚΟΔΟΜΗΣ (ΠΡΟΣΒΑΣΗ ΚΑΙ ΜΕ ΤΟ ΑΣΑΝΣΕΡ). ΔΙΑΘΕΤΕΙ ΘΕΡΜΑΝΣΗ ΑΤΟΜΙΚΟΥ ΦΥΣΙΚΟΥ ΑΕΡΙΟΥ, ΚΟΥΦΩΜΑΤΑ ΑΛΟΥΜΙΝΙΟΥ ΜΕ ΑΝΑΚΛΙΣΗ ΚΑΙ ΔΙΠΛΑ ΤΖΑΜΙΑ, ΠΛΑΚΑΚΙ ΣΤΑ ΔΑΠΕΔΑ, ΘΩΡΑΚΙΣΜΕΝΗ ΠΟΡΤΑ, ΕΙΝΑΙ ΦΩΤΕΙΝΗ, ΒΑΜΜΕΝΗ, ΜΠΡΟΣΤΙΝΗ ΚΑΙ ΓΩΝΙΑΚΗ, ΜΕ ΦΑΡΔΥ ΜΠΑΛΚΟΝΙ ΚΑΙ ΕΧΕΙ ΟΨΗ ΣΕ ΔΡΟΜΟ. ΣΤΗΝ ΟΙΚΟΔΟΜΗ ΠΩΛΕΙΤΑΙ ΑΚΟΜΗ ΜΙΑ ΟΜΟΙΑ ΜΕΖΟΝΕΤΑ, 2ου ΚΑΙ 3ου ΟΡΟΦΟΥ, 90τμ, ΣΤΙΣ 305.000 ΕΥΡΩ.
ΠΑΡΑΔΟΣΗ ΙΟΥΛΙΟ ΤΟΥ 2026.

















