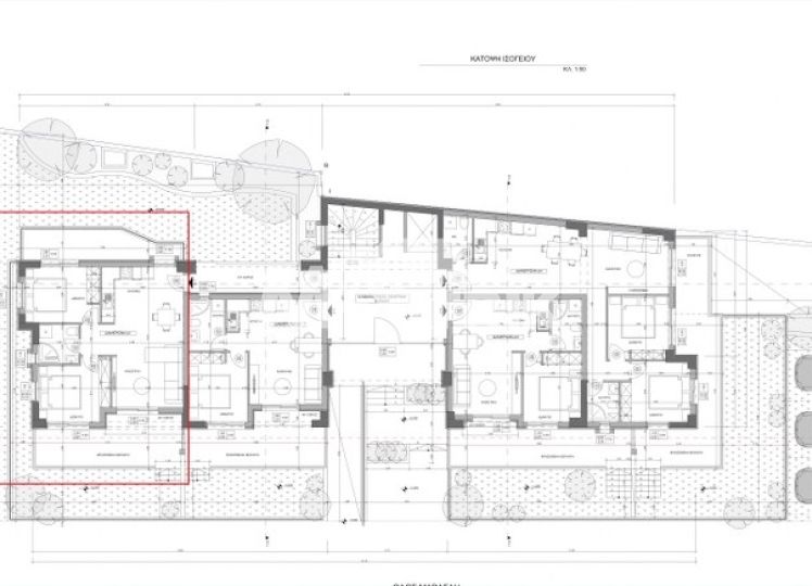
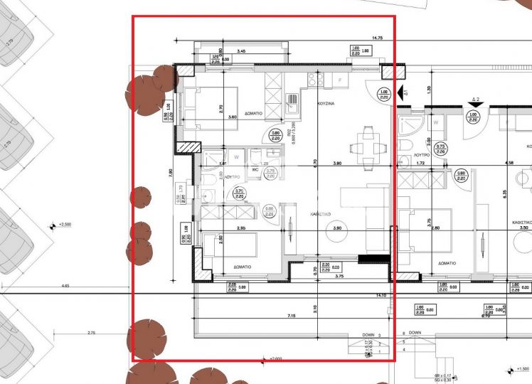
ΠΥΛΑΙΑ, ΥΠΟ ΚΑΤΑΣΚΕΥΗ ΙΣΟΓΕΙΟ ΔΙΑΜΕΡΙΣΜΑ 69τμ, 2Δ(ΣΚ)ΜΠWC, ΜΕ ΜΙΑ ΑΝΟΙΧΤΗ ΘΕΣΗ ΣΤΑΘΜΕΥΣΗΣ ΚΑΙ ΑΥΛΗ ΑΠΟΚΛΕΙΣΤΙΚΗΣ ΧΡΗΣΗΣ.
ΤΟ ΔΙΑΜΕΡΙΣΜΑ ΑΠΟΤΕΛΕΙΤΑΙ ΑΠΟ ΜΙΑ ΕΝΙΑΙΑ ΣΑΛΟΚΟΥΖΙΝΑ, ΔΥΟ ΥΠΝΟΔΩΜΑΤΙΑ, ΜΠΑΝΙΟ ΜΕ ΝΤΟΥΖΙΕΡΑ, ΠΑΡΑΘΥΡΟ ΚΑΙ ΘΕΣΗ ΓΙΑ ΤΟ ΠΛΥΝΤΗΡΙΟ ΡΟΥΧΩΝ, ΕΝΑ WC ΚΑΙ ΜΙΑ ΑΠΟΘΗΚΗ ΣΤΟ ΥΠΟΓΕΙΟ ΤΗΣ ΟΙΚΟΔΟΜΗΣ (ΠΡΟΣΒΑΣΗ ΚΑΙ ΜΕ ΤΟ ΑΣΑΝΣΕΡ). ΔΙΑΘΕΤΕΙ ΘΕΡΜΑΝΣΗ ΑΤΟΜΙΚΟΥ ΦΥΣΙΚΟΥ ΑΕΡΙΟΥ, ΚΟΥΦΩΜΑΤΑ ΑΛΟΥΜΙΝΙΟΥ ΜΕ ΑΝΑΚΛΙΣΗ ΚΑΙ ΔΙΠΛΑ ΤΖΑΜΙΑ, ΠΛΑΚΑΚΙ ΣΤΑ ΔΑΠΕΔΑ, ΘΩΡΑΚΙΣΜΕΝΗ ΠΟΡΤΑ, ΕΙΝΑΙ ΦΩΤΕΙΝΟ, ΓΩΝΙΑΚΟ ΚΑΙ ΔΙΑΜΠΕΡΕΣ, ΜΕ ΦΑΡΔΥ ΜΠΑΛΚΟΝΙ, ΑΥΛΗ 26τμ ΑΠΟΚΛΕΙΣΤΙΚΗΣ ΧΡΗΣΗΣ ΚΑΙ ΕΧΕΙ ΟΨΗ ΣΕ ΔΡΟΜΟ.
ΠΑΡΑΔΟΣΗ ΙΟΥΛΙΟ ΤΟΥ 2026.















