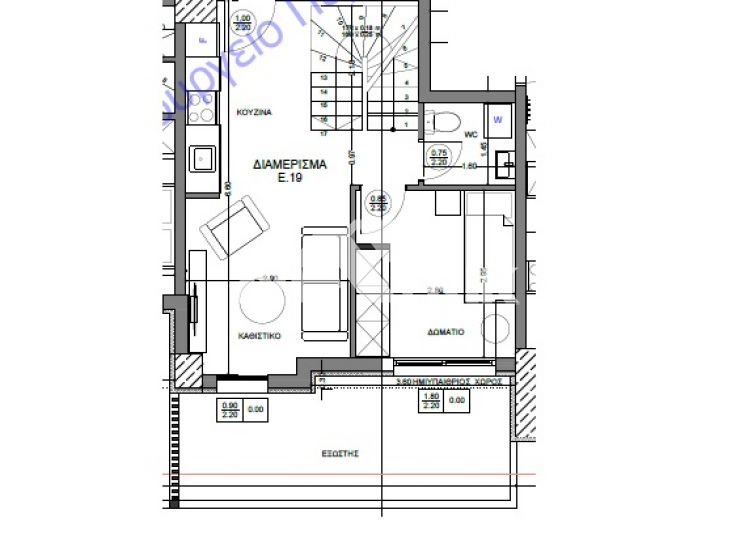
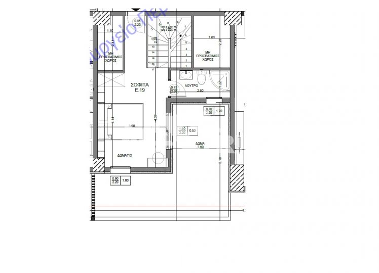
ΝΙΚΟΠΟΛΗ, ΥΠΟ ΚΑΤΑΣΚΕΥΗ ΜΕΖΟΝΕΤΑ 78τμ (62τμ ΚΑΘΑΡΑ), 5ου ΚΑΙ 6ου ΟΡΟΦΟΥ (Ο 6ος ΕΙΝΑΙ ΣΟΦΙΤΑ ΚΑΙ ΕΧΕΙ ΚΑΙ ΔΙΚΗ ΤΟΥ ΕΙΣΟΔΟ), 2Δ(ΣΚ)ΜΠWC, ΜΕ ΒΕΡΑΝΤΑ ΚΑΙ ΜΙΑ ΘΕΣΗ ΣΤΑΘΜΕΥΣΗΣ ΣΤΗΝ ΠΥΛΩΤΗ.
Η ΜΕΖΟΝΕΤΑ ΑΠΟΤΕΛΕΙΤΑΙ ΑΠΟ ΜΙΑ ΕΝΙΑΙΑ ΣΑΛΟΚΟΥΖΙΝΑ, ΔΥΟ ΥΠΝΟΔΩΜΑΤΙΑ ΜΕ ΝΤΟΥΛΑΠΕΣ, ΜΠΑΝΙΟ ΜΕ ΝΤΟΥΖΙΕΡΑ, ΕΝΑ WC ΜΕ ΘΕΣΗ ΓΙΑ ΤΟ ΠΛΥΝΤΗΡΙΟ ΡΟΥΧΩΝ ΚΑΙ ΜΙΑ ΑΠΟΘΗΚΗ ΣΤΟ ΥΠΟΓΕΙΟ ΤΗΣ ΟΙΚΟΔΟΜΗΣ. ΔΙΑΘΕΤΕΙ ΘΕΡΜΑΝΣΗ ΑΤΟΜΙΚΟΥ ΦΥΣΙΚΟΥ ΑΕΡΙΟΥ, ΚΟΥΦΩΜΑΤΑ ΑΛΟΥΜΙΝΙΟΥ ΜΕ ΔΙΠΛΑ ΤΖΑΜΙΑ ΚΑΙ ΣΙΤΕΣ, ΠΛΑΚΑΚΙ ΣΤΑ ΔΑΠΕΔΑ, ΠΡΟΕΓΚΑΤΑΣΤΑΣΗ ΣΥΝΑΓΕΡΜΟΥ, ΘΥΡΟΤΗΛΕΟΡΑΣΗ, ΘΩΡΑΚΙΣΜΕΝΗ ΠΟΡΤΑ, ΕΙΝΑΙ ΦΩΤΕΙΝΗ, ΜΠΡΟΣΤΙΝΗ, ΜΕ ΒΕΡΑΝΤΑ ΚΑΙ ΕΧΕΙ ΟΨΗ ΣΕ ΔΡΟΜΟ.
ΠΑΡΑΔΟΣΗ ΟΚΤΩΒΡΙΟ ΤΟΥ 2027.

