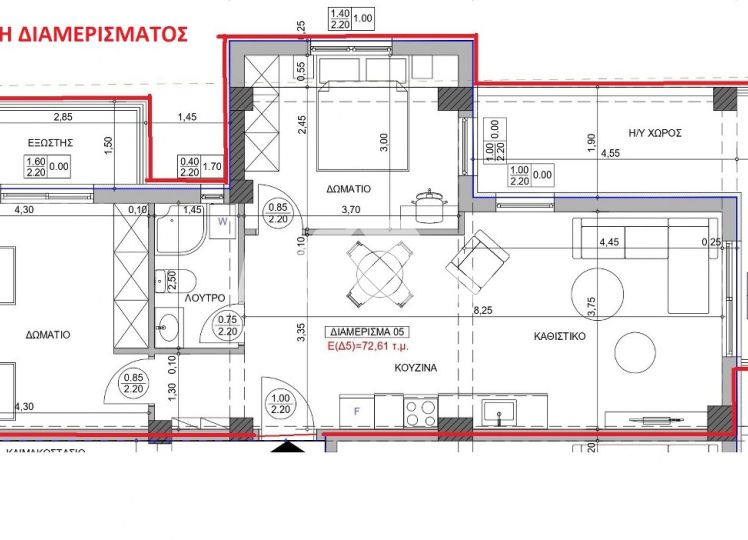
ΘΕΡΜΗ, ΥΠΟ ΚΑΤΑΣΚΕΥΗ ΔΙΑΜΕΡΙΣΜΑ 81τμ, 1ου ΟΡΟΦΟΥ, 2Δ(ΣΚ)ΜΠ, ΜΕ ΔΥΟ ΑΝΟΙΧΤΕΣ ΘΕΣΕΙΣ ΣΤΑΘΜΕΥΣΗΣ.
ΤΟ ΔΙΑΜΕΡΙΣΜΑ ΑΠΟΤΕΛΕΙΤΑΙ ΑΠΟ ΜΙΑ ΕΝΙΑΙΑ ΣΑΛΟΚΟΥΖΙΝΑ, ΔΥΟ ΥΠΝΟΔΩΜΑΤΙΑ, ΜΠΑΝΙΟ ΜΕ ΝΤΟΥΖΙΕΡΑ, ΠΑΡΑΘΥΡΟ ΚΑΙ ΘΕΣΗ ΓΙΑ ΤΟ ΠΛΥΝΤΗΡΙΟ ΡΟΥΧΩΝ ΚΑΙ ΜΙΑ ΑΠΟΘΗΚΗ 31τμ ΣΤΟ ΥΠΟΓΕΙΟ ΤΗΣ ΟΙΚΟΔΟΜΗΣ. ΔΙΑΘΕΤΕΙ ΘΕΡΜΑΝΣΗ ΑΤΟΜΙΚΟΥ ΦΥΣΙΚΟΥ ΑΕΡΙΟΥ, ΚΟΥΦΩΜΑΤΑ ΑΛΟΥΜΙΝΙΟΥ ΜΕ ΑΝΑΚΛΙΣΗ ΚΑΙ ΔΙΠΛΑ ΤΖΑΜΙΑ, ΠΛΑΚΑΚΙ ΣΤΑ ΔΑΠΕΔΑ, ΘΩΡΑΚΙΣΜΕΝΗ ΠΟΡΤΑ, ΕΙΝΑΙ ΦΩΤΕΙΝΟ, ΜΠΡΟΣΤΙΝΟ ΚΑΙ ΓΩΝΙΑΚΟ, ΜΕ ΦΑΡΔΥ ΜΠΑΛΚΟΝΙ ΚΑΙ ΕΧΕΙ ΟΨΗ ΣΕ ΔΡΟΜΟ.
ΠΑΡΑΔΟΣΗ ΙΟΥΛΙΟ ΤΟΥ 2027.



