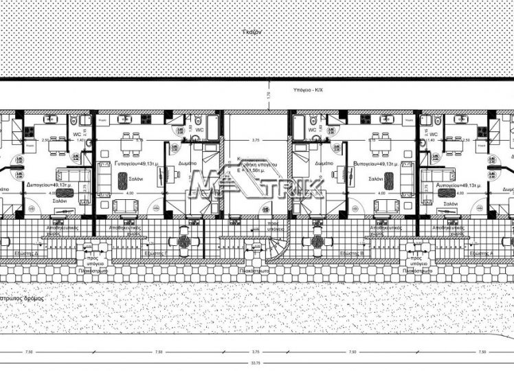
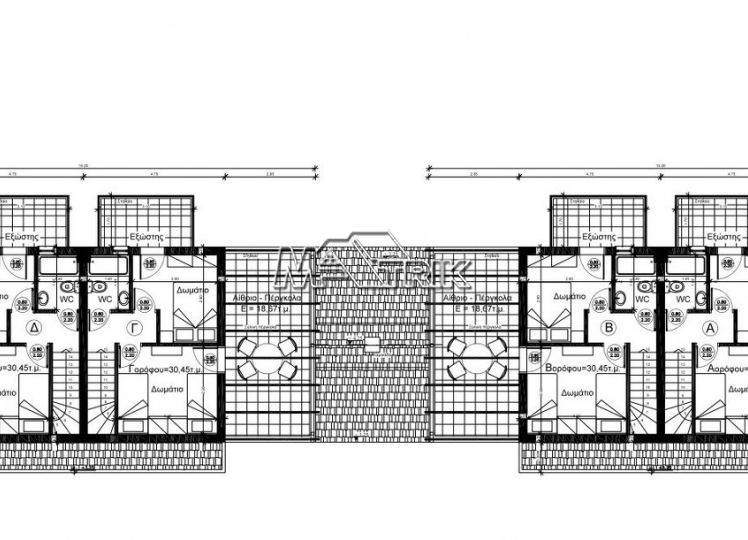
Psakoudia, Halkidiki, residential complex for sale with a total living area of 505 sq.m.,of luxurious construction, within a fenced plot of land of 4138 sq.m. The complex is located in a sparsely populated, quiet area, which is classified as of the highest environmental quality and protected by the Natura treaty. The distance of the complex from the beach is only 250m and Psakoudia village is 3km away. The complex consists of four maisonettes of 123 sq.m. each plus an additional 25 sq.m shared warehouse. Each maisonette consists of a kitchen - living room with a dining room on the ground floor, two bedrooms and a bathroom on the 1st floor and a single space in the semi-basement, which can be configured into a kitchen - living room, one or two rooms (if the maisonette is at the corner or not) and a bathroom. The semi-basements have an independent entrance from the rest of the house, as well as an inside staircase. The maisonettes have quality tiled floors, armored front door, retractable aluminum frames with double glazing and fly nets, stainless steel railings, stone cladding, heat and sound insulation, energy fireplace in the living room, solar water heater, pre-installation for individual heating, storage space on the ground floor, patio of 18 sq.m. with pergola on the 1st floor. The complex has a large communal yard with a barbecue kiosk and plenty of parking space. The complex is in very good condition and fully functional. Maisonettes are not for sale individually.























